
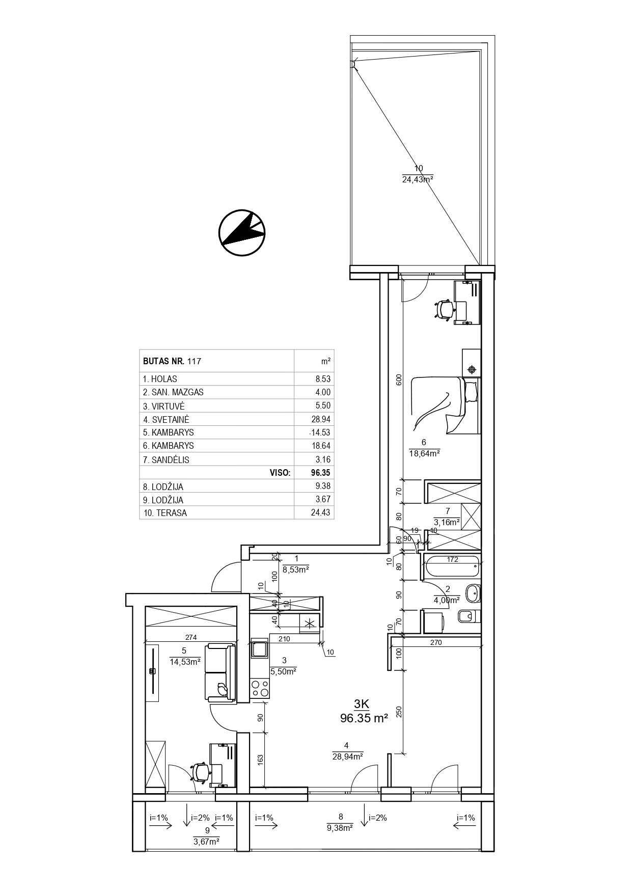
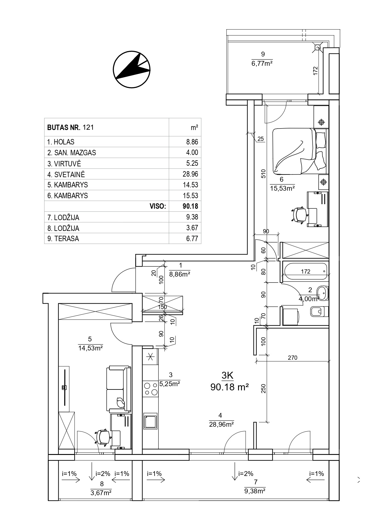
3-ių kambarių butai - 90,18 - 96,35 kv. m.
IV laiptinė
€210000.00
Į buto statybos kaina su dalinė apdaila įskaičiuota: vidaus pertvarų įrengimas iš vieno sluoksnio g/k plokščių, elektros ir santechnikos instaliacija, šildymo sistema su sunaudotos šilumos apskaita, padidinto saugumo durys, grindų išlyginimas su garso izoliacija ir išorinių sienų tinkavimas. Tai sumažins Jūsų išlaidas buto pilnam įrengimui.


