
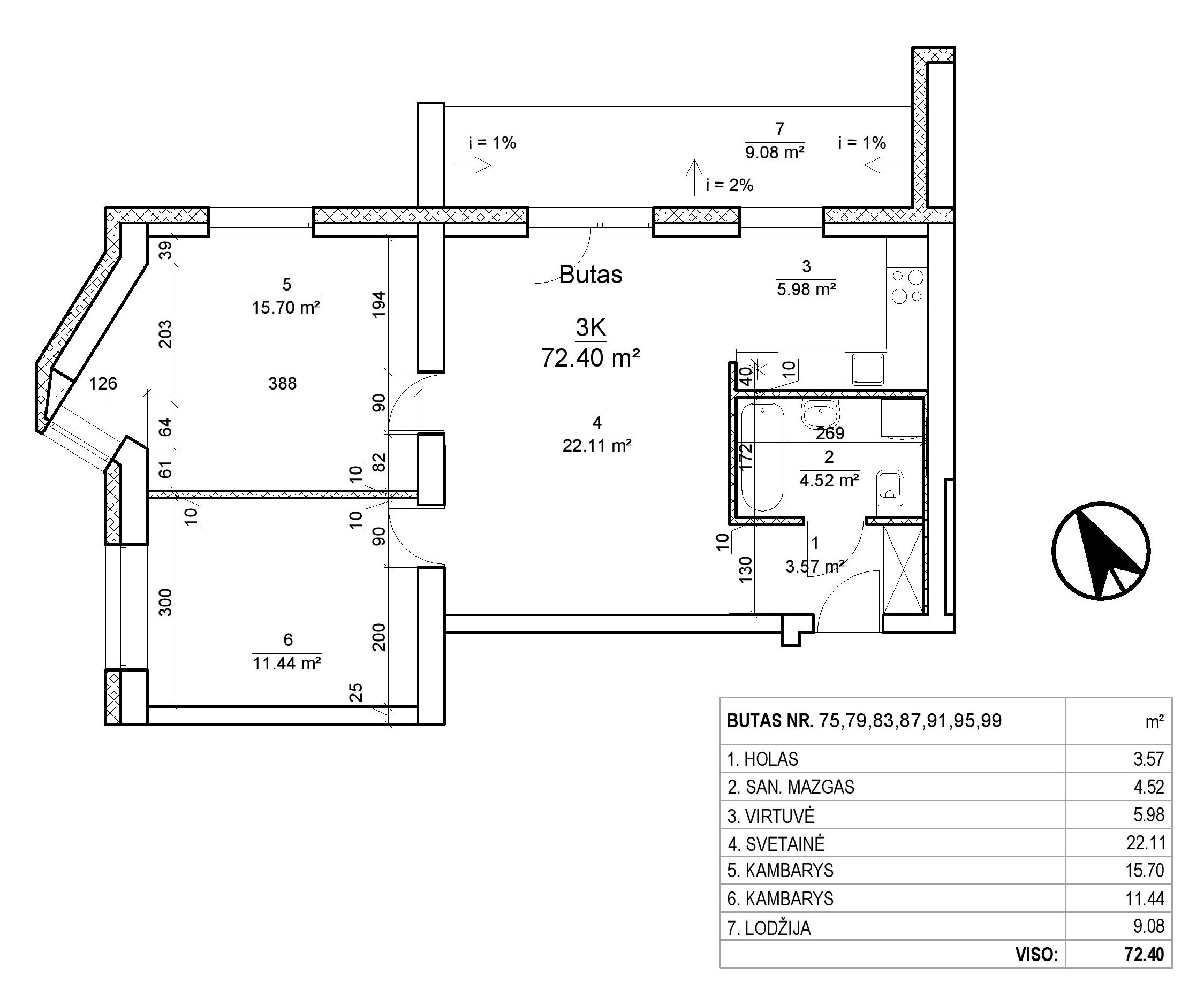
3-jų kambarių nauji butai butai su daline apdaila - 72,00 kv. m.
III laiptinė
€195000.00
Į buto statybos kaina su dalinė apdaila įskaičiuota: vidaus pertvarų įrengimas iš vieno sluoksnio g/k plokščių, elektros ir santechnikos instaliacija, šildymo sistema su sunaudotos šilumos apskaita, padidinto saugumo durys, grindų išlyginimas su garso izoliacija ir išorinių sienų tinkavimas. Tai sumažins Jūsų išlaidas buto pilnam įrengimui.


