
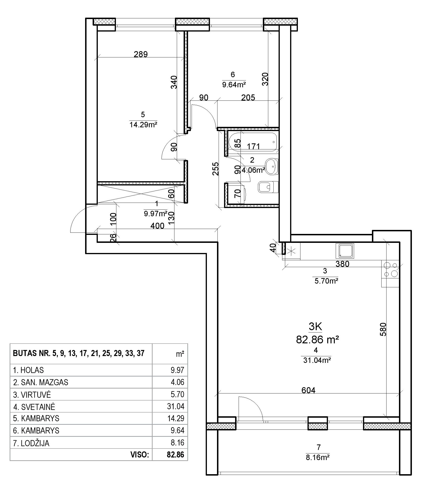
3-jų kambarių butai - 75,00-83,00 kv. m.
I laiptinė
€245000.00
Į naujo buto kaina su pilna apdaila įskaičiuota.
Kambarių vidaus sienos yra dažytos, o grindys padengtos laminuota grindų danga. Vonios kambaryje sienos ir grindys - plytelės. Įrengta santechnika, WC su dangčiu, praustuvas su spintele ir maišytuvu bei vonia su dušo maišytuvu. Elektra taip pat yra įrengta, įskaitant jungiklius, rozetes ir šviestuvus. Be to, bute yra sumontuotos vidinės durys. Tai puikus pasiūlymas tiems, kurie ieško jaukių ir tvarkingų pirmų namų - kur gyventi gera.
Į buto kaina su dalinė apdaila įskaičiuota: vidaus pertvarų įrengimas iš vieno sluoksnio g/k plokščių, elektros ir santechnikos instaliacija, šildymo sistema su sunaudotos šilumos apskaita, padidinto saugumo durys, grindų išlyginimas su garso izoliacija ir išorinių sienų tinkavimas. Tai sumažins Jūsų išlaidas buto pilnam įrengimui.


