
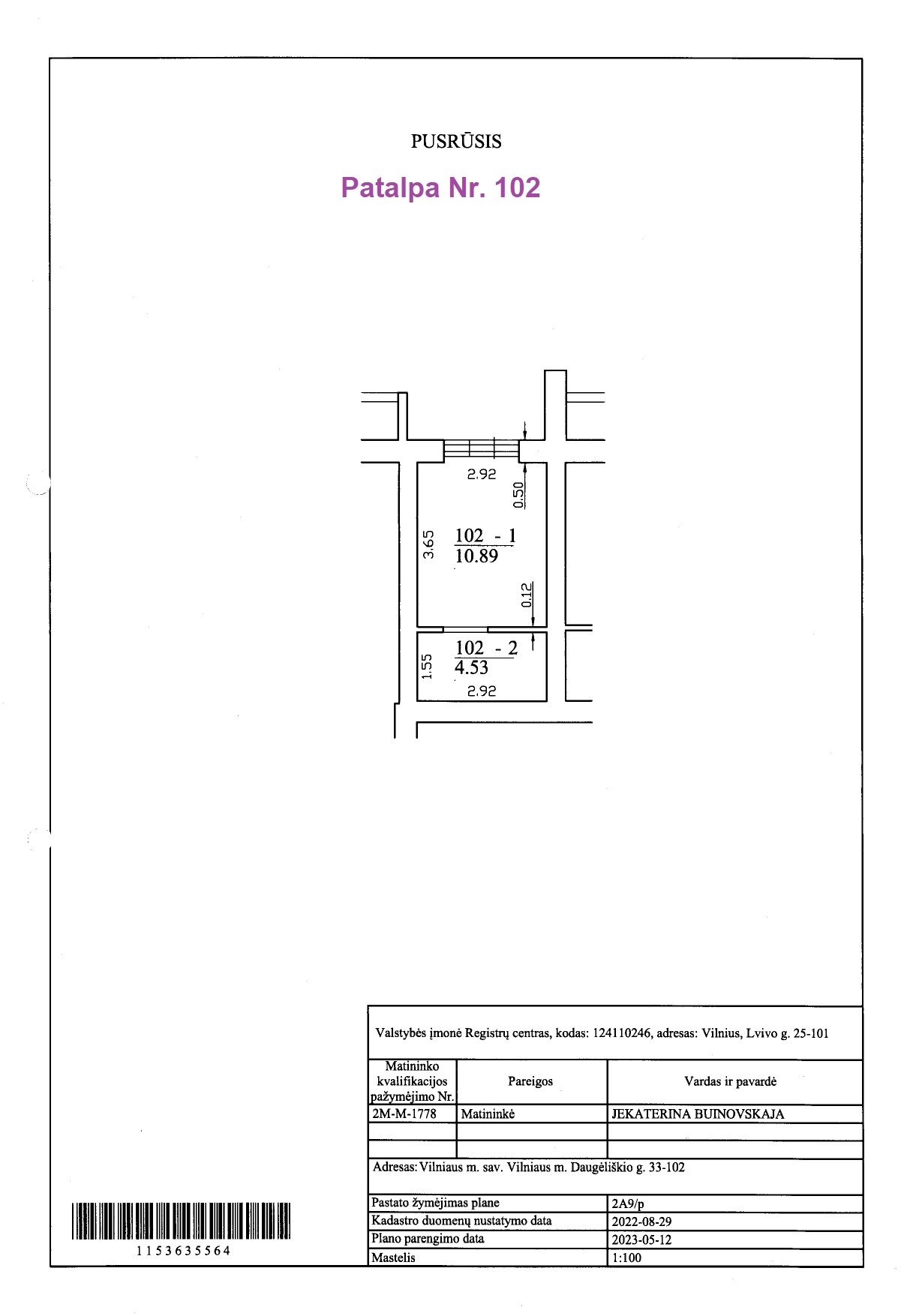
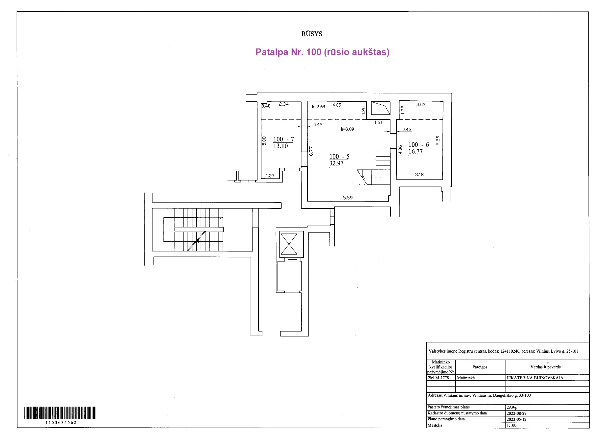
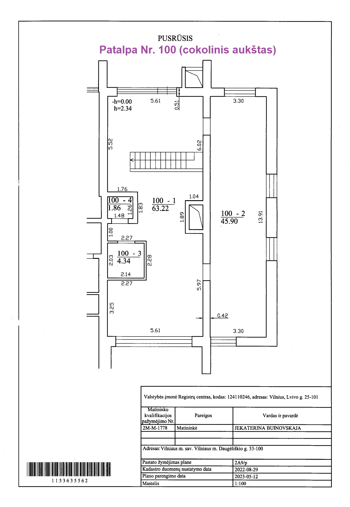
Daugėliškio g. 33 (Šnipiškės) komercinės patalpos
Namas PASTATYTAS
€270000.00
Į patalpos kaina su dalinė apdaila įskaičiuota: vidaus pertvarų įrengimas iš vieno sluoksnio g/k plokščių, elektros ir santechnikos instaliacija, šildymo sistema su sunaudotos šilumos apskaita, apsauginė signalizacija, grindų išlyginimas ir išorinių sienų tinkavimas.
Administracinė
Dalinė
A klasės


